Año: 2025-actual |  Estatus: En Construcción 

La casa de las reuniones.

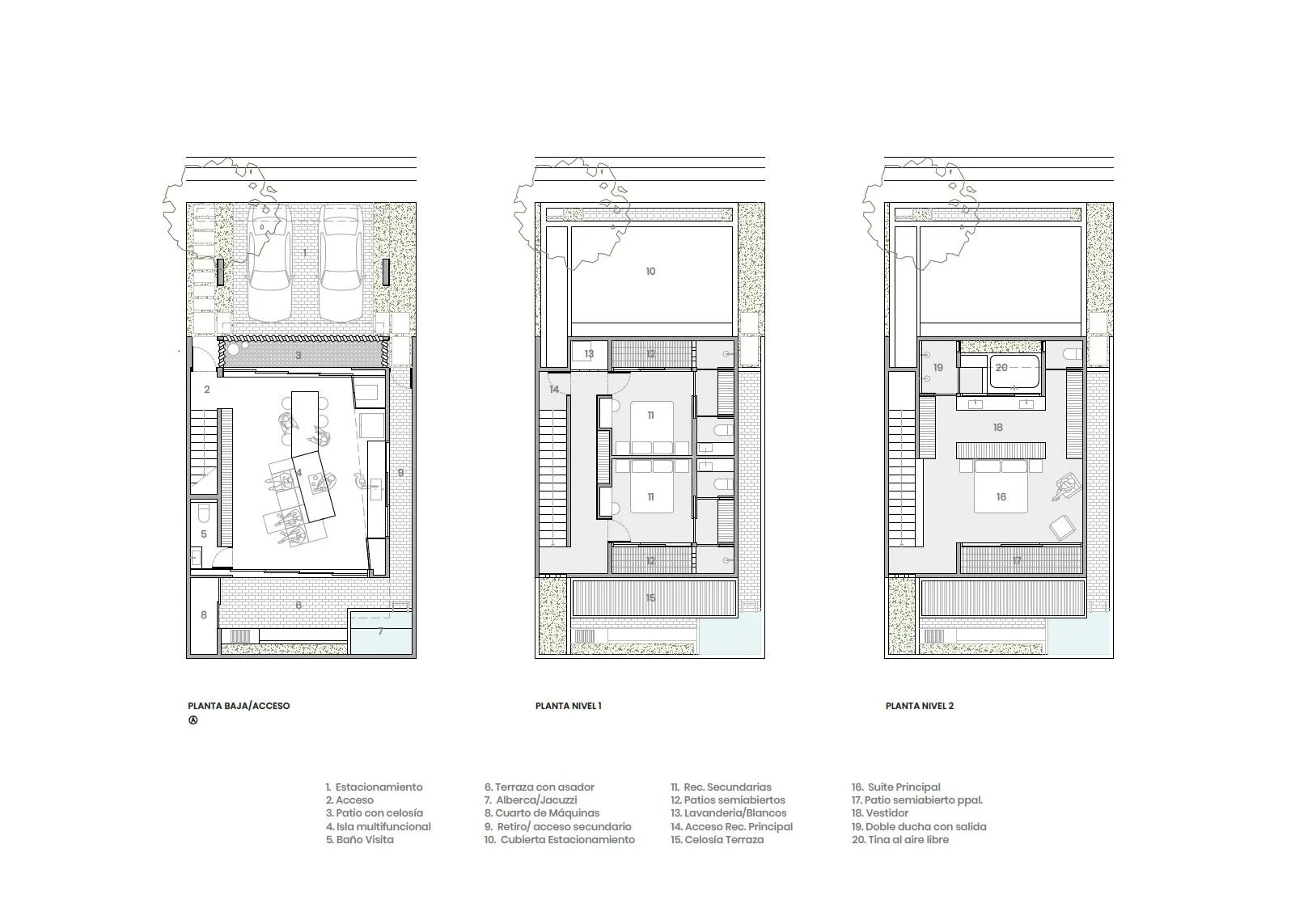
Un hogar debe reflejar las dinámicas de quien lo habita. Si los encuentros son fundamentales, los espacios públicos dentro de la casa deben potenciar y facilitar la ocupación de grupos.

Partiendo de esa premisa, la Planta Baja de la casa de articula con un elemento monumental protagónico -una isla multifuncional- que permite una circulación y comunicación directa entre los dos patios que delimitan la sala/cocina.

Por su parte, los espacios privados priorizan la privacidad mediante patios protegidos a los que entra la luz, y ventilan naturalmente, sin tener que exponerse a los vecinos.

Previous
Previous

Palmeral Camuri

Next
Next

Casa Senderos