Año: 2025-2026 | Estatus: En Construcción

Casas Hermanas

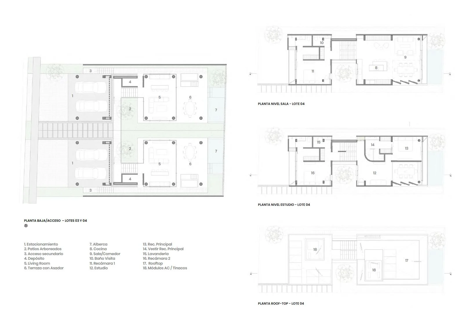
Cuando dos terrenos se diseñan para familiares, las oportunidades de optimización de espacios compartidos se potencian: patios y jardineras expanden las perspectivas, minimizando el efecto de compresión que sufren los terrenos en medianera.

Adicionalmente, se proponen estrategias de expansión de las vistas a la laguna, siendo el principal atributo de estos terrenos orientados Este-Oeste.

Previous
Previous

Tili Winery

Next
Next

Palmeral Camuri